Volem jugar a casa!
La nostra pista no pot esperar més
El Projecte arquitectònic
Lluïsos de Gràcia té una pista a la coberta de l’entitat, amb 75 anys d‘història, on s’hi realitza principalment l’activitat esportiva del bàsquet. Aquesta pista ha quedat obsoleta per a dur a terme entrenaments i part dels partits que s’hi fan (més de 800 partits l’any).
Lluïsos necessita reformar la pista, ampliant-la, per tal de poder seguir jugant “a casa” i alhora poder-hi dur a terme altres activitats esportives i culturals de l’entitat.
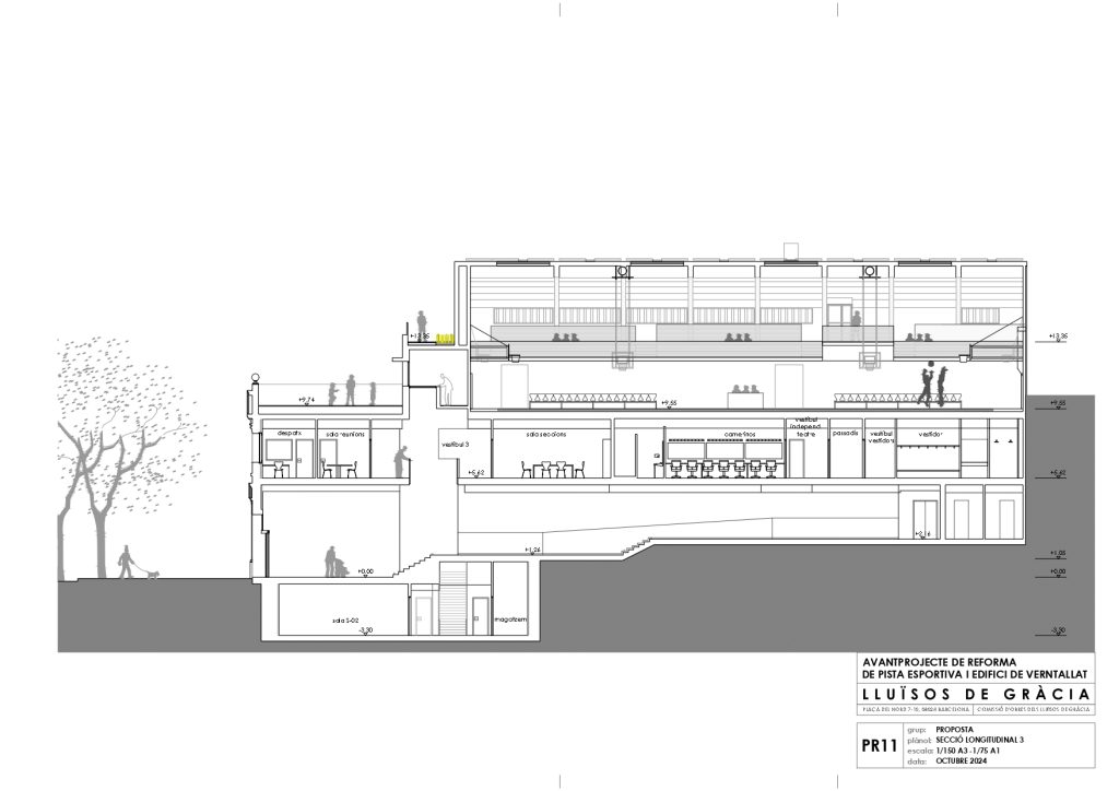
El projecte també comporta la reforma i ampliació de l’edifici annex, propietat dels Lluïsos, que ha d’esdevenir punt d’accés a la pista i habilitar espais per a altres pràctiques esportives. Les obres connectaran l’edifici actual i el nou rehabilitat a través d’unes passarel·les.
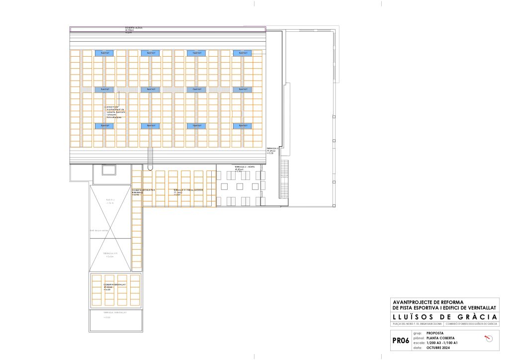
Finalment, la reforma permetrà invertir en una coberta verda, amb plaques fotovoltaiques que dotarien d’energia elèctrica a Lluïsos i al veinatge del barri.

Millores associades a la reforma
1
Extracció de la coberta d’uralita (fibrociment).
2
Millora de l’aïllament acústic, evitant molèsties al veïnat pel soroll generat per jugadors /es, públic, senyals acústics del marcador electrònic…
3
Millora de l’aïllament tèrmic, essent més eficients energèticament.
4
Ampliació de les dimensions de la pista, per tal de complir amb les mides requerides per la Federació Catalana de Bàsquet.
5
Ampliació de les distàncies de seguretat entre els límits de la pista i les parets circumdants.
6
Creació d’una comunitat energètica i producció d’energia neta per a subministrar l’entitat i el barri.
7
Ampliació d’espais per a dur a terme altres pràctiques esportives com el judo, ioga, dansa i altres activitats culturals. Més de 1.200 metres de cultura i esport.
8
Alliberament d’espais del barri actualment
ocupats per als entrenaments i partits dels equips de bàsquet dels Lluïsos.
Plànols i renders











Plànols i renders del projecte de la nova pista de bàsquet
Pla especial
Per a dur a terme la reforma de la pista hem elaborat un Pla Especial que ja ha estat aprovat pel Govern. Actualment està en fase d’exposició pública i posteriorment caldrà que sigui aprovat pel Ple de l’Ajuntament.
Podeu trobar la informació aquí.
La comissió d’arquitectes ha estat més d’un any preparant la informació requerida i coordinant-se amb Urbanisme de l’Ajuntament per a dur a terme la presentació i aprovació.
Pressupost
Per poder realitzar la reforma completa es necessiten 3M€, aproximadament.

Impulsem una Comunitat Energètica
Als Lluïsos de Gràcia sempre hem cregut en la força de la comunitat. Per això, fem un pas més en el nostre compromís social i mediambiental: impulsem una Comunitat Energètica Local (CEL) per generar, compartir i democratitzar l’accés a l’energia renovable.
Instal·larem plaques solars al terrat de l’entitat, cosa que ens permetrà aprofitar l’energia solar per fomentar la sostenibilitat, implicar-nos en la transició energètica i acabar tenint un estalvi econòmic a llarg termini. És una solució ecològica i una oportunitat per crear una xarxa de suport entre persones sòcies dels Lluïsos, veïnes, entitats i comerços que vulguin sumar-se al canvi.
Aquest és només l’inici. Volem que aquesta comunitat energètica sigui un projecte viu, on tothom pugui participar i beneficiar-se d’una energia més neta i accessible. Podem transformar el nostre entorn i convertir-nos en referents d’una nova manera de gestionar l’energia.

Producció compartida
Produir, distribuir i consumir l’energia elèctrica fotovoltaica de km0, mitjançant el desenvolupament de projectes d’instal·lacions solars a terrats i cobertes, amb l’ús compartit de l’energia generada.

Eficiència energètica
Investigar i aplicar mesures d’eficiència energètica en les instal·lacions, habitatges i edificis de sòcies i socis per millorar l’ús de l’energia i reduir-ne el consum.

Accessibilitat
Treballar per garantir l’accés a l’energia verda per a la ciutadania de Gràcia, fomentant l’estalvi energètic i lluitant contra la pobresa energètica.
L’entitat
Els Lluïsos de Gràcia és una associació sociocultural i esportiva, sense ànim de lucre, fundada l’any 1855 a la Vila de Gràcia amb l’objectiu d’oferir espais de formació en el lleure per a infants i joves i fomentar el creixement personal dels adults. Amb aquesta finalitat, l’entitat ofereix un ampli ventall d’activitats culturals i esportives que fomenten els valors de
l’associacionisme i la col·lectivitat en un clima de respecte i convivència. Gran part de l’activitat dels Lluïsos es vertebra a partir de les seccions i gràcies a socis que les organitzen de manera voluntària: els dirigents. A més, els Lluïsos promou altres activitats i projectes amb l’objectiu de fomentar la cultura, la identitat i llengua catalanes, el respecte pel medi ambient i la integració de la multiculturalitat.

La secció de bàsquet
La secció de bàsquet té més de 300 famílies que confien els seus infants i joves a l’escola de bàsquet de Lluïsos, amb una implantació de 75 anys a la ciutat, arribant a ser un dels clubs més importants per trajectòria i impacte social.
La secció de bàsquet, a grans trets té:
- 300 jugadores i jugadors de bàsquet de Lluïsos de Gràcia
- Escola de bàsquet pels més petits + 31 equips (masculins i femenins per igual) + 2 equips d’inclusió Lluïsos-acidH
- 36 entrenadors i entrenadores + equip tècnic, tot basat en el voluntariat
- Estem a lliga Copa Catalunya i som membres de la Federació Catalana de bàsquet
- Juguem més de 800 partits l’any, la meitat a casa.
- Producció compartida
Les comissions
Si vols formar part d’alguna de les comissions ecriu-nos a lluisos@lluisosdegracia.cat
Pista
Rafael Giménez
Laura Ràfegas
Oriol Hosta
Víctor Valls
Marta Buch
Arquitectes
Victor Valls
Cris Dorado
Roger Ayza
Obres
Rafael Giménez
Miquel Lope
Oriol Hosta
Nino Samsó
Eugeni Hosta
Víctor Valls
Marta Buch
Institucional
Rafael Giménez
Oriol Hosta
Marta Buch

